全国统一服务电话

0871-63163777

作品 设计师 新闻 楼盘
【2018金装奖】第五届 | 家装工程类·优秀奖:林飞—航空艺术港

2019-03-27 14:35:41

【2018金装奖】第五届 | 家装工程类·优秀奖:林飞—航空艺术港

2019年1月9日,2018第五届“金装奖”室内设计大赛颁奖盛典在昆明世博园中国馆盛大举行,昆明中策

装饰(集团)高级主任设计师林飞的作品《航空艺术港》荣获“家装工程类”优秀奖。

获奖档案:

奖   项:家装工程类 · 优秀奖

作   品:航空艺术港

设计师:林飞    昆明中策装饰(集团)高级主任设计师

家装工程类 · 优秀奖

林飞

昆明中策装饰(集团)  高级主任设计师


4.jpg

主打项目:

家装高端别墅、商业空间设计、办公楼设计、酒店及民宿设计、售楼部及样板房空间设计。

获得荣誉:

2016年荣获第三届“金装奖“室内设计大赛-家装方案类银奖;

2017年荣获第四届“金装奖“室内设计大赛公装工程类优秀奖/家装方案类优秀奖

成功案例;

滇池高尔夫、世博生态城、公园1903、西亚山庄、都铎城邦、华夏御府、美的顺城府、野鸭湖别墅、湖


畔之梦、玉龙湾、航空艺术港……

获奖作品

航空艺术港

面积:192㎡

户型:跃层

风格:新中式

本案例为四居室,建筑面积192平米。新中式风格:中国风的构成主要体现在传统家具装饰品及黑、红为

主的装饰色彩上。室内多采用对称式的布局方式,格调高雅,造型简朴优美,色彩浓重而成熟。中国传

统室内陈设包括字画、匾幅、挂屏、盆景、瓷器、古玩、屏风、博古架等,追求一种修身养性的生活境

界。中国传统室内装饰艺术的特点是总体布局对称均衡,端正稳健,而在装饰细节上崇尚自然情趣,精

雕细琢,富于变化,充分体现出中国传统美学精神。


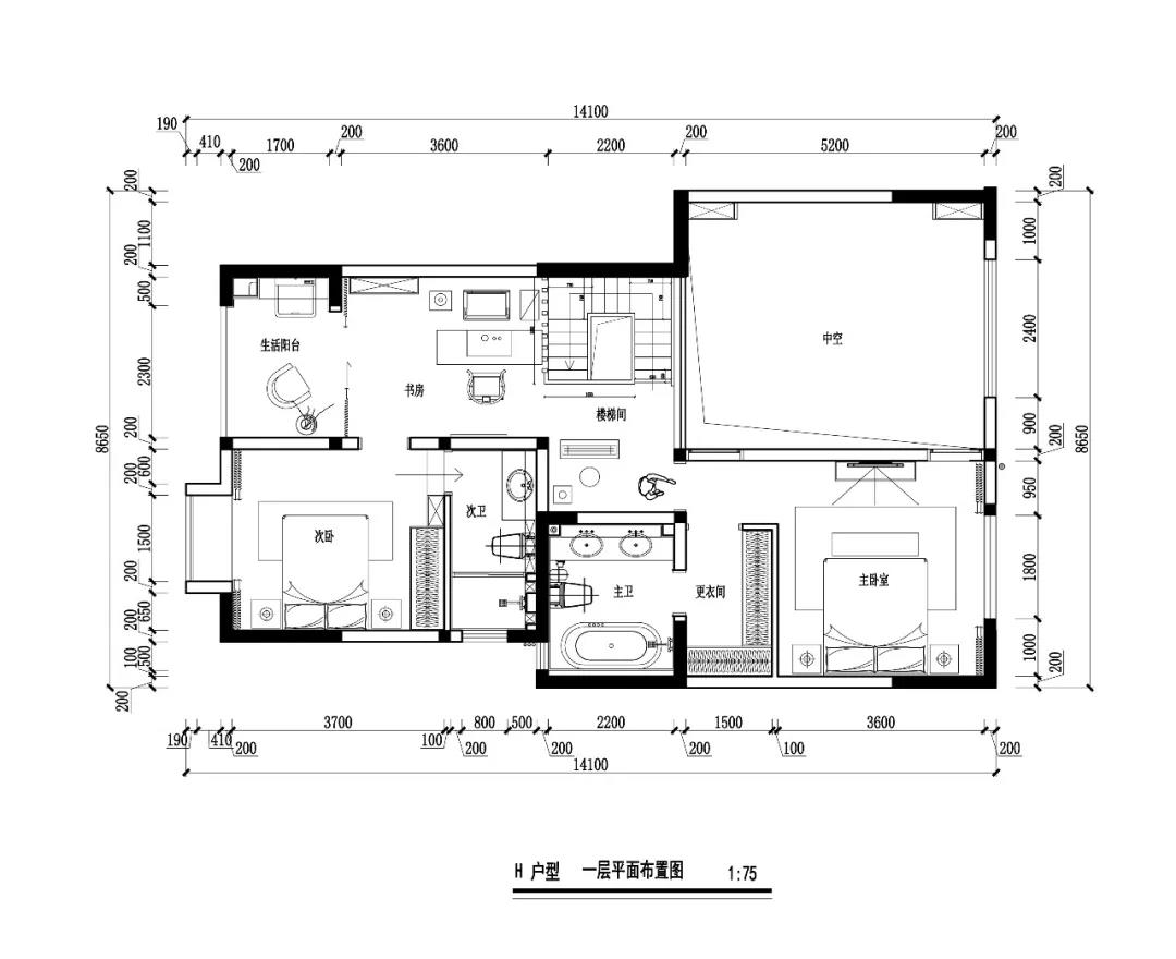
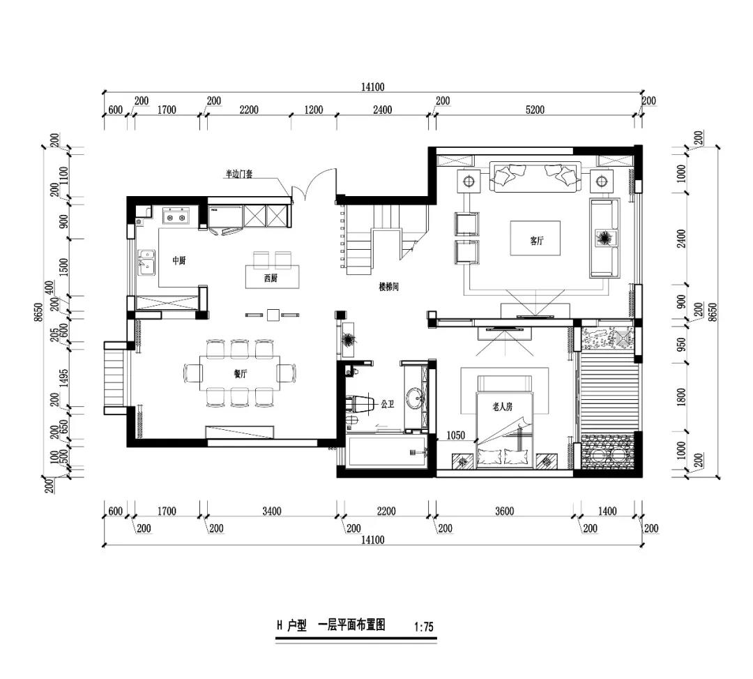
平面布置

17.jpg18.jpg

19.jpg

——云南设计界的奥斯卡——

 【金装奖室内设计大赛】简称【金装奖】,是云南最具影响力和公信力的室内设计年度评选。【金装奖

】由云南省室内设计行业协会指导,“金装奖”室内设计大赛组委会主办,联合全省各大院校协办,面

向全省室内(建筑)设计从业者(专业组)和在校毕业生(学生组)征稿,以“传播设计正念,推动行

业发展”为使命,倡导“设计改善生活”的价值观,提倡“公平公正公开公益”的评审原则,致力于搭

建一个“发现设计人才、传播设计价值、推动设计发展”的学术竞技平台。

【金装奖】室内设计大赛—评审:【金装奖】室内设计大赛评审分为三个阶段:第一阶段为参赛作品的

大范围收集整理,覆盖全省16州市(院校)。第二阶段为“初评”阶段,对要求不符的作品可经组委会

返回机构(院校)或个人(学生)重新整理,如仍然不符合要求视为放弃比赛,不进入终审阶段。第三

阶段为“终审”阶段,由评审委员会国际评委和省内评委通过网评(盲评)的形式进行打分最终加权平

均依次得出评选结果。

【金装奖】室内设计大赛—奖项设置:首先分为“专业组”和“学生组”两大类,其中,“学生组”不

按类别细分,设一等奖、二等奖、三等奖、优秀奖、优秀指导教师奖和优秀组织奖。

“专业组”分为四大类,分别是“公装方案类、公装工程类、家装方案类、家装工程类”,每类分别按

得分高低评选出一金、二银、三铜和优秀奖,共计54个奖项。

【金装奖】室内设计大赛—公益融推:对获奖设计师和获奖作品,通过杂志、网络、微信公众平台、公

益联展等方式,进行综合性展示和推广,全方位呈现给市场大众。